物件コード 駅名 住所 バス
徒歩
タイプ 賃料
共益費
向き 間取
面積m2
築年月 階/階建 詳細 画像
j6071 忠岡駅 岸和田市吉井町2丁目
11分
店舗一部 ¥40,000
 
   
28.37m2
H11/10 1階〜1階/2階建 間取あり写真あり写真あり写真あり写真あり写真あり
建H11年築、給排水引込済、トイレ、プロパンガス、仲介料家賃1ヶ月分
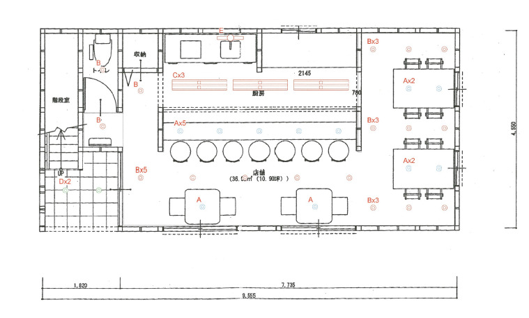
11428 春木駅 岸和田市春木旭町
6分
店舗付住居(戸建) ¥150,000
 
   
36m2
H30/03 1階/3階建 間取あり間取あり写真あり写真あり写真あり写真あり写真あり
税別、3F建 1F店舗 駅徒歩6分 引渡2026年3月